- La recuperació d’aquest espai, inclòs a la Xarxa Natura 2000 i al PEIN, és una condició indispensable perquè el Port de Tarragona pugui iniciar les obres de la nova Zona d’Activitats Logístiques (ZAL)
- Es desviarà l’actual canal de drenatge cap a l’est, el que permetrà crear una llacuna central de grans dimensions amb illes, de gran interès per atreure espècies d’aus

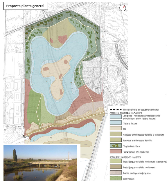
La Comissió territorial d’urbanisme de Tarragona, presidida pel director general d’Ordenació del Territori i Urbanisme, Agustí Serra, ha aprovat avui el projecte de restauració dels Prats d'Albinyana de la Pineda, a Vila-seca, impulsat per l’Autoritat Portuària de Tarragona (APT). La recuperació d’aquest espai humit, inclòs a la Xarxa Natura 2000 i al Pla d’Espais d’Interès Natural (PEIN) és una condició prèvia indispensable perquè el Port tarragoní pugui iniciar les obres de creació de la seva Zona d’Activitats Logístiques (ZAL).
La ZAL tindrà un total de 92 hectàrees i suposarà una inversió pública per part de l’Autoritat Portuària de Tarragona de 72,8 milions d’euros. S’ubicarà en el recinte portuari, en el terme municipal de Vila-seca i adjacent al nucli urbà de la Pineda. El Pla especial d’ordenació de la ZAL va establir, com a mesura compensatòria del seu impacte ambiental, la necessitat d’executar un projecte de restauració i ordenació de la zona dels Prats d’Albinyana.
Són 37,78 hectàrees situades al costat d’on s’ubicarà la ZAL, en un zona pertanyent a la Xarxa Natura 2000, concretament a l’espai de la Séquia Major, que comprèn dos sectors separats: la Séquia Major pròpiament dita i els Prats d’Albinyana. Ambdós espais també estan inclosos en el Pla d’espais d’interès natural (PEIN). Pel mig de l’àmbit discorre un canal de desguàs, que drena les aigües pluvials contingudes per la variant de Vila-seca (A-7). A més, part de l’espai dels Prats d’Albinyana està catalogat com a zona humida de la Platja dels Prats de Vila-seca. Com a patrimoni cultural, destaca la presència de restes arqueològiques de la vil·la romana de Cal·lípolis.
Malgrat totes les figures de protecció dels Prats d’Albinyana, els seus valors naturals es troben en risc degut a les constants pressions i impactes de l’entorn, que han provocat una pèrdua continuada de biodiversitat. Per tal de revertir aquesta situació, cal restaurar l’espai amb la creació d’hàbitats assimilables als valors que s’han degradat.
Una gran llacuna central
El projecte aprovat proposa el desviament del canal de drenatge de l’A-7 actual cap al límit est de la zona de la Xarxa Natura 2000, bordejant la zona delimitada del jaciment arqueològic de Cal·lipolis per desembocar dins del port, sota el futur moll.
Això permetrà crear una llacuna de grans dimensions, amb illes que podrien ser de gran atractiu per a grups d’ardeids o fins i tot per a la gavina corsa. Aquesta distribució permetria un millor tractament integrat de l’espai protegit sense la presència d’un canal al mig.
D’altra banda, el Pla especial d’ordenació de la ZAL estableix que, per assolir la restauració completa dels Prats d’Albinyana, serà necessari desplaçar el contradic de ponent fora de l’àmbit de la Xarxa Natura 2000. En conseqüència, caldrà desmuntar el dic actual i reomplir amb material adequat per construir la platja contra el dic i poder-hi reproduir hàbitats litorals. Això suposarà l’eliminació dels primers 600 metres de l’espigó i la inclusió d’aquest nou espai alliberat a la platja de la Pineda. El projecte de restauració proposa la creació d’una llacuna temporal i un sistema dunar sobre la pròpia platja. El pressupost de les obres de restauració és d’1,6 milions d’euros, amb un termini d’execució de 12 mesos.
El 84% dels terrenys que abasta el projecte de restauració dels Prats d’Albinyana són de titularitat pública. Pel que fa als sòls de titularitat privada, s’obtindran per expropiació. Precisament, el Consell Executiu d’ahir dimarts va declarar urgent l’ocupació dels béns i els drets afectats d’expropiació per aquest projecte de restauració.




