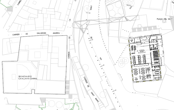
- S’ubicarà a la segona planta de la Fàbrica del Salt, un espai cedit per l’Ajuntament de Manresa, on també s’instal·larà la Delegació Territorial del Govern a la Catalunya Central
- Entrarà en funcionament el segon trimestre del 2022 i donarà servei de finestreta única a la ciutadania des d’aquest emplaçament temporal fins al trasllat al nou edifici de la Generalitat als antics Jutjats, previst pel segon semestre del 2026
- Aquest dijous al matí s’ha presentat el projecte, amb la presència de la delegada del Govern a la Catalunya Central, Alba Camps, i de l’alcalde de Manresa, Marc Aloy
La primera Oficina d’Atenció Ciutadana (OAC) de la Generalitat a la Catalunya Central veurà la llum el segon trimestre del 2022 i se situarà al bell mig de la ciutat de Manresa. Concretament s’ubicarà a la segona planta de la Fàbrica del Salt, un espai cedit per l’Ajuntament a la Generalitat en règim de concessió administrativa, que també acollirà les dependències de la Delegació Territorial de la Generalitat a la Catalunya Central. Es tracta d’un emplaçament temporal, ja que està previst que aquestes oficines es traslladin al nou edifici corporatiu de la Generalitat als antics Jutjats de la ciutat, cap al segon semestre del 2026. Aquest dijous al matí s’ha presentat el projecte, amb la presència de la delegada del Govern a la Catalunya Central, Alba Camps Roca, i de l’alcalde de Manresa, Marc Aloy Guàrdia.
La iniciativa de fer aquest pas provisional, mentre no estigui construït el nou complex, neix de la voluntat del Govern d’accelerar la prestació del servei de finestreta única als habitants de les comarques de la Catalunya Central i facilitar-los les seves gestions amb l’administració. Així, la nova OAC gestionarà qualsevol tràmit relacionat amb qualsevol departament de la Generalitat.
En aquest sentit, la delegada del Govern a la Catalunya Central, Alba Camps Roca, ha valorat positivament una aposta que permetrà “un contacte més accessible i més directe amb la ciutadania” i “una millora en la qualitat del servei”. La delegada també ha detallat que amb la nova oficina es comença a implementar “una nova manera de treballar que la Generalitat està potenciant: un híbrid entre treball presencial i teletreball, amb una visió molt més col·laborativa”.
La Fàbrica del Salt és un edifici catalogat com a Bé Cultural d’Interès Local i qualificat com a equipament. L’Ajuntament cedirà temporalment la segona planta d’aquest immoble a la Generalitat, en règim de concessió administrativa, durant un període de 6 anys. L’administració catalana s’encarregarà de la remodelació i adequació de l’espai, per un cost aproximat de 675.000 euros, i l’ocuparà fins a la posada en funcionament del nou edifici corporatiu.
Està ubicada en una zona estratègica al barri de les Escodines, just en el punt on es connecta amb el Barri Antic a través de la passera. Les noves dependències es troben a l’entrada de la ciutat, sobre mateix de l’aparcament del Centre Històric i estan situades just al davant de la futura seu de la Generalitat i a tocar de la plaça Major.

En aquest punt, l’alcalde de Manresa, Marc Aloy Guàrdia, ha subratllat que l’Oficina d’Atenció Ciutadana de la Generalitat generarà nova activitat al barri de les Escodines, un fet que reforça “l’aposta per a la seva revitalització”. L’alcalde també ha volgut fer un agraïment a la Generalitat per un projecte “que dota Manresa d’un nou servei per a tota la Catalunya Central” en uns espais que es rehabilitaran i que quedaran per la ciutat.
Abans de la cessió de l’espai, es van dur a terme les obres de nous accessos a l’edifici. En concret, es va construir un nucli vertical de comunicacions, format per una escala comunitària i un ascensor, que permet connectar totes les plantes amb dos nous accessos: un a cota de la via de Sant Ignasi i un altre des de la plaça de Salt, amb accés directe a la segona planta, la que ara se cedeix a la Generalitat. El nou volum té una façana d’obra de maó vist, similar a l’emprat en la construcció de la xemeneia. Aquestes obres van tenir un cost de 280.000 euros, assumides per les dues propietats que se’n beneficien: l’Ajuntament de Manresa i l’Associació Islàmica del Bages.
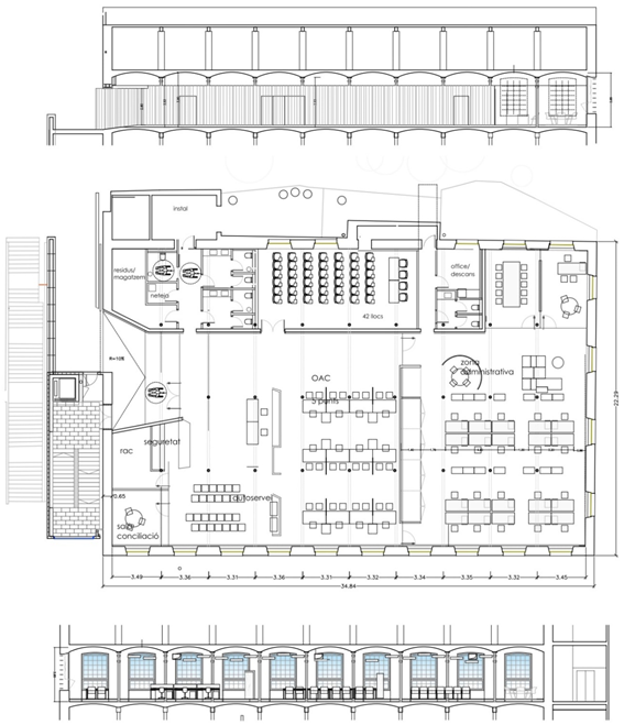
Les instal·lacions que se cedeixen a la Generalitat són a la segona planta de l’edifici, que havia estat en desús des del tancament de la fàbrica. Tenen una superfície diàfana de 810 m2, en una planta rectangular d’una alçada d’entre 3,50 i 3,90 metres, i inclouran:
- Delegació Territorial del Govern: despatx del Delegat o Delegada del Govern, sala de reunions, espai de treball per a 10 persones i magatzem.
- Oficina d’Atenció Ciutadana (OAC): taulell d’atenció i registre ràpid, zona d’espera, sala de reunions, espai d’autoservei, 12 taules d’atenció i espai de treball backoffice per a 7 persones.
- Altres espais de treball complementaris i auxiliars: espai per a seguretat, sala d’actes, serveis públics i serveis d’ús restringit per als treballadors, magatzem de neteja i de residus i sala rac (connexions informàtiques i elèctriques).




