Visió global
El projecte en curs del nou intercanviador Martorell Centre, que inclou la nova estació de FGC, i la remodelació de l’estació de RENFE, ha comportat greus problemes d’integració en l’entorn urbà, particularment pel què fa al barri de Can Carreres.
Per tal de solucionar-los, des del Departament de Política Territorial i Obres Públiques, s’ha impulsat una anàlisi global de tot el projecte. Així, PTOP, RENFE i Ajuntament de Martorell han reestudiat l’actual planificació de forma conjunta, per tal de replantejar-la i corregir-ne les seves deficiències en la integració amb la ciutat.
A partir d’aquesta nova visió global, la Generalitat ha encarregat la redacció d’un projecte constructiu complementari per tal de tal d’adaptar les obres en curs a aquesta situació i millorar la urbanització del barri de Can Carreres i la seva relació amb l’estació i la resta de la ciutat.
Mesures d’integració
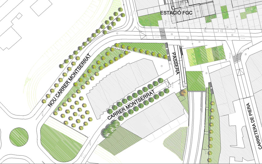
El projecte complementari, que es començarà a redactar d’immediat, té com objectiu principal integrar el nou intercanviador Martorell Centre al barri de Can Carreres i millorar la connectivitat del barri amb la resta de la ciutat. Per fer-ho, les solucions que s’adoptaran es centraran en disminuir l’impacte visual i el fre a la mobilitat que suposa l’actual mur que separa la platja de vies dels ferrocarrils, dels carrers d’aquest barri.
En aquest sentit, el projecte preveu la construcció d’una rampa per vianants que des del final de carrer Montserrat portarà en ziga-zaga fins a la plaça elevada de l’intercanviador. En aquest mateix punt, s’instal·laran també unes escales mecàniques que facilitaran aquest accés.
A l’alçada del Nou carrer Montserrat s’instal·larà un ascensor que portarà directament a l’estació de FGC Martorell Centre.
Aquestes actuacions a banda de millorar la connexió del barri amb l’estació i la ciutat estaran dissenyades de tal manera que disminuiran en gran mesura l’impacte visual que suposa actualment el mur de separació amb les vies.
D’altra banda, aquest projecte, i des de la visió global amb que s’ha concebut, preveu també una important actuació de reurbanització complerta de tot l’entorn d’aquest punt i de l’àmbit comprès entre el carrer Montserrat i el Nou carrer Montserrat.
Aquestes actuacions preveuen la renovació del paviment, les voreres, el mobiliari urbà, l’enllumenat i l’ajardinament de tota la zona.
Terminis
Aquest projecte complementari s’adjudicarà abans de l’estiu i comportarà una inversió addicional d’uns 4 MEUR sobre el total de l’actuació de la nova estació de FGC que ja s’està desenvolupant i que té un cost de 56 MEUR.
Es preveu que en els propers mesos ja comencin a circular trens per aquestes vies i que abans de l’estiu es pugui posar en servei la nova estació de FGC Martorell Centre.
RENFE, per la seva banda, adjudicarà també abans de l’estiu les obres de remodelació de la seva estació.
El projecte del nou intercanviador de Martorell Centre, concebut globalment, es complementarà amb una futura actuació que significarà l’ampliació de la plaça de l’intercanviador en uns 30 metres cosa que implicarà el perllongament parcial del cobriment de les vies de RENFE. PTOP, MIFO, RENFE i Ajuntament de Martorell estudiaran conjuntament l’adequació d’aquest projecte.



